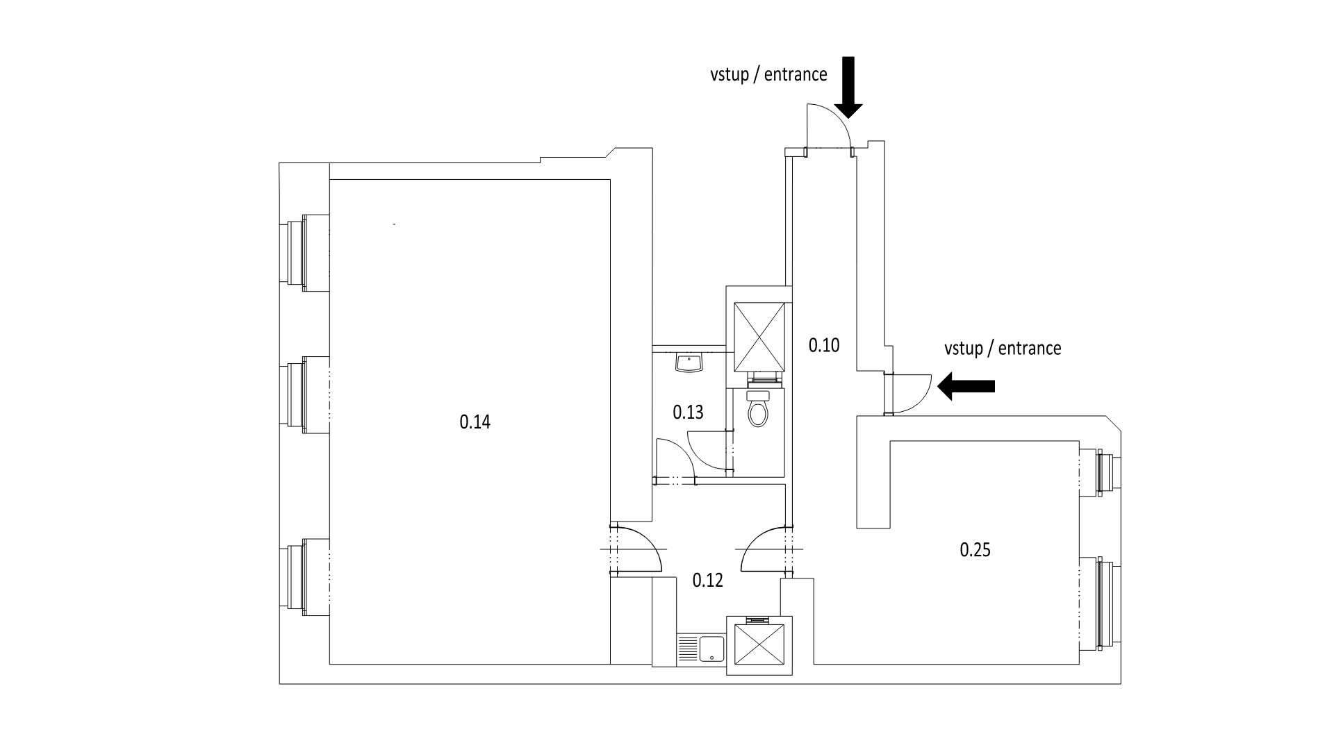
Nebytový prostor 0.2